Les installations dans les fonderies doivent répondre à des contraintes spécifiques. Le poids des mécanismes et le manque d’accessibilité doivent êtres gérés à la conception. L’ambiance abrasive et polluée implique l’utilisation de moyens adaptés. Ces critères sont intégrés dans nos études.
Réalisations en fonderie :
• Transitique moule gravitaire, gestion de la coulée, démoulage, nettoyage et recyclage.
• Aménagement poste pour interchangeabilité d’outillages.
• Indexage chariot en position, colonnages spécifiques.
• Ringardeage.
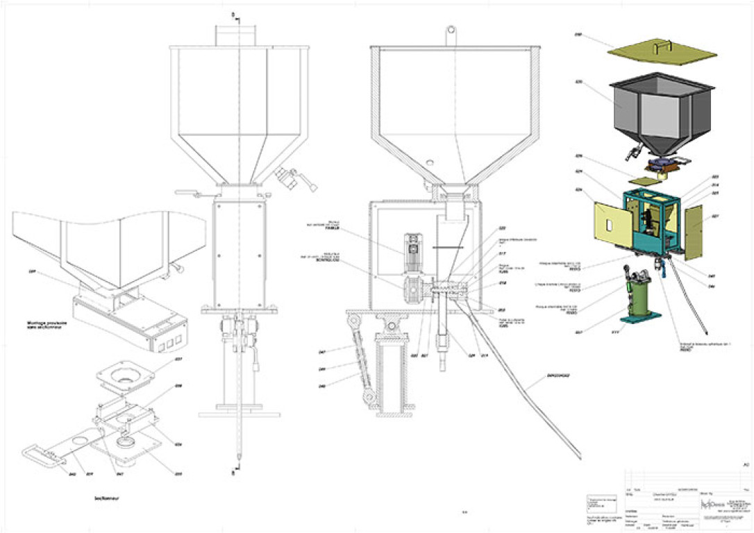
• Inoculateur.