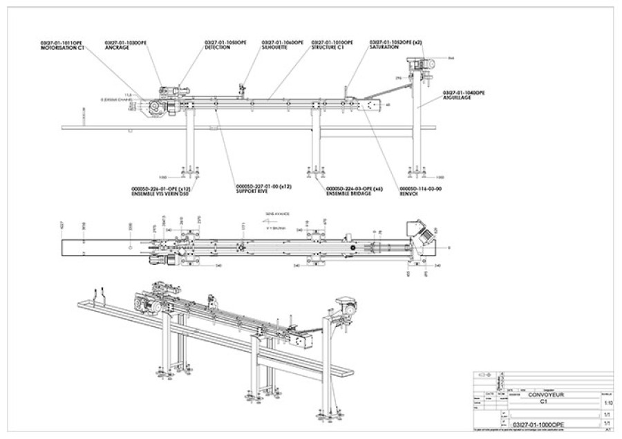
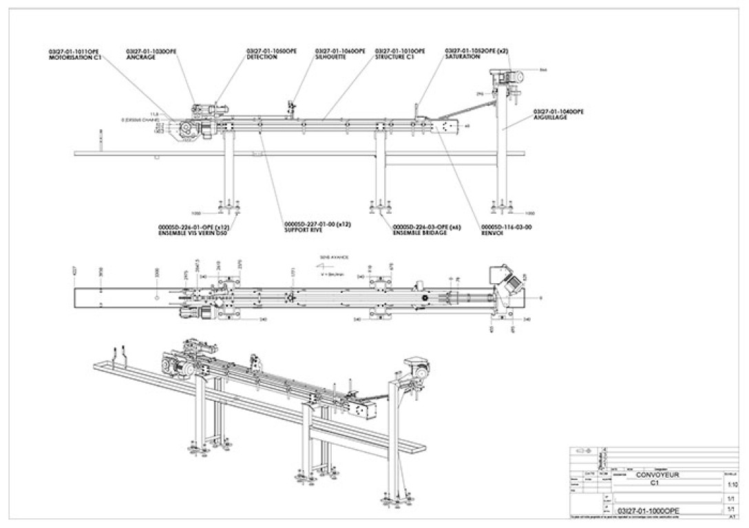
Gestion des flux de productions.Transfert, convoyage avec gestion pièces : ancrage, retourneur, accumulation, saturation, stockeur.
Convoyeur à chaine, à rouleaux ou à bandes .Convoyage produit ou palette outillage.
Contactez nous au
ou