Bâtiment / chaudronnerie

MKSU Sarl met au service des industriels spécialisés en bâtiment et chaudronnerie ses connaissances techniques mécaniques. Le bureau d'étude se charge de réceptionner la demande client. Une représentation schématique en 3D est alors réalisée. Ensuite, une demande de validation est adressée à l'architecte ou au chaudronnier compétent. Une fois cette étude validée, la réalisation du dossier de fabrication est engagée.

 

Réalisations en bâtiment / chaudronnerie

Garde-corps

Gestion accès PMR. Mise en sécurité: Garde corps, rampe, rambarde, plateforme.

Escalier

Pour l’industrie, les collectivités ou les particuliers. Avec ou sans habillage de trémie. Suivant les normes et règles de calculs spécifiques...

Habillage façade

En relation avec les architectes et les chaudronniers nous étudions et réalisons les calculs et plans nécessaires à la réalisation de...

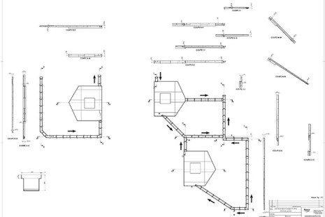
Génie civil

Etude pour création dalle batiment neuf ou reprises sur batiment existant. Plan de tracé pour création massifs, fosses, saignées, implantation...

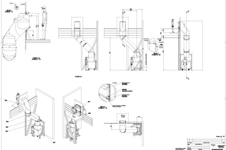
Mise en sécurité

Protection des personnes par garde corps, protections grillagées, passerelle, échelle crinoline, barrière immatérielle, scrutateur…

Divers

Exemple d’un ensemble de présentation tracteur agricole avec élévation permettant la rotation des roues sur un stand de salon. Nos exemples de...
Ce site utilise des cookies et vous donne le contrôle sur ce que vous souhaitez activer Tout accepter Personnaliser